Маркетплейс твоєї Країни![]()
Характеристики Сталева топка Inca 80
| Виробник | lacunza |
| ККД, % | 82 |
| КЛАС ЕНЕРГОЕФЕКТИВНОСТІ | А+ |
| НОМІНАЛЬНА ЕФЕКТИВНА ПОТУЖНІСТЬ, кВт | 15 |
| ОБ'ЄМ ЗОЛЬНИКА, л | 2,7 |
| ОБ'ЄМ НАГРІТОГО ПОВІТРЯ, м³ | 333 |
| ПЛОЩА ОПАЛЕННЯ, м² | 133 |
| РОЗМІР ДРОВ, см | 60 |
| ТЕМПЕРАТУРА В ДИМАРІ, °С | 281 |
| ВИТРАТА ДЕРЕВИНИ (БУК, при номінальній потужності), кг/год | 4,2 |
Опис Сталева топка Inca 80
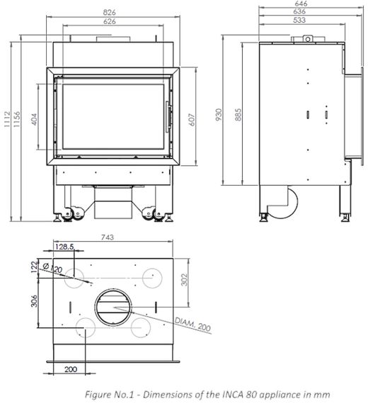
Сталева топка “Inca 80”
– ширина топки 80 см – система “чисте скло” – камера згорання дубльована вогнетривким матеріалом – рамка 25 мм – забір повітря ззовні – подвійне догорання димових газів – чотири повітропроводи для виходу теплого повітря
Додаткові опції:
– вмонтований вентилятор з регулюванням швидкості подачі повітря +348 Євро
Відгуки та питання про - Сталева топка Inca 80
0.0
Всього відгуків:0